Homeslide-Ashton-003

Floor Plans

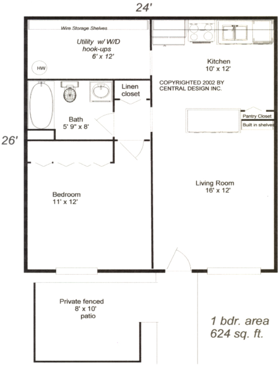
One Bedroom Apartment

1-bedroom-A

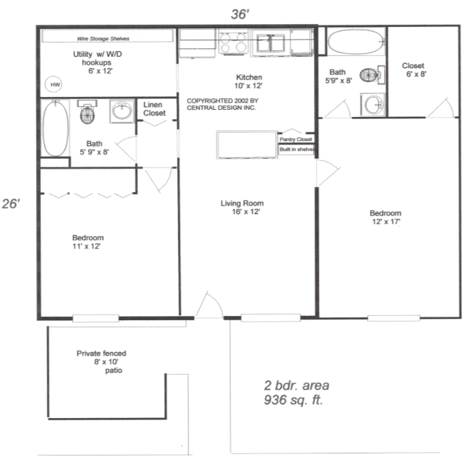
Two Bedroom Apartment

2-bedroom-A
Skip to content